Газовый камин является прекрасным аналогом дровяного камина и для загородного дома и для городской квартиры. Быстрый розжиг, простое и легкое управление с помощью пульта ДУ, отсутствие копоти и грязи, абсолютная безопасность - это только незначительная часть качеств, которыми обладают приборы с газовой горелкой.
Голландские газовые камины BellFires имеют современный дизайн и компактные размеры. Задняя стенка внутри может быть выполнена из глянцевой керамики черного цвета. Газовая горелка маскируется декоративным наполнением, что придает камину натуральный вид и естественность. В качестве декора могут использоваться серые камни, мраморная галька или керамические поленья с имитацией настоящих дров.
Газовый камин BellFires - это не только красивый элемент в интерьере, но и отличный отопительный прибор.
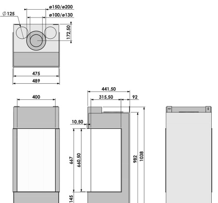
Трехсторонний камин View Bell Vertical 3 оборудован закрытой топкой с газовой горелкой. Высокое стекло дает возможность любоваться огнем в полном объеме. Расход газа (природный газ): 0,90 м3/час. Расход газа (пропан): 420 грамм/час. Задняя панель: стандарт или черная глянцевая керамика. Камин может быть подключен к дымоходу D 100/150 мм или 130/200 мм.
Камин View Bell Vertical 3 оборудован двойной газовой горелкой, которая позволяет выбрать один из двух режимов: обычный режим, при котором работают обе горелки (передняя и задняя), и режим экономии энергии, в котором работает только одна горелка (передняя). С помощью одного нажатия на кнопку дистанционного пульта управления, Вы можете уменьшить мощность на целых 40% и наслаждаться камином в теплое время года. При использовании камина в данном режиме существенно экономится потребление газа, но пламя при этом горит также красиво и высоко.
Стандартная комплектация:
- рамка Hidden Door,
- горелка Line Fire или Centre Fire,
- полированное стекло,
- стальные панели или простой фон,
- художественное оформление горелки,
- дистанционное управление.
Аксессуары:
- Антибликовое стекло.
- Керамическое чёрное зеркало (внутренняя задняя + 1 боковая часть).
- Рамка Hidden Door+ 10 см.
- Комплект для конвекции теплого воздуха (кожух + 2 решетки + 2 вентиляционных канала 1,5м).
- Комплект регулируемых ножек 0-350 мм (4шт.).
- Wi-Fi модуль.
- Дымоход, аксессуары.
Технические
Для покупки товара в нашем интернет-магазине выберите понравившийся товар и добавьте его в корзину. Далее перейдите в Корзину и нажмите на «Оформить заказ» или «Быстрый заказ».
Когда оформляете быстрый заказ, напишите ФИО, телефон и e-mail. Вам перезвонит менеджер и уточнит условия заказа. По результатам разговора вам придет подтверждение оформления товара на почту или через СМС. Теперь останется только ждать доставки и радоваться новой покупке.
Оформление заказа в стандартном режиме выглядит следующим образом. Заполняете полностью форму по последовательным этапам: адрес, способ доставки, оплаты, данные о себе. Советуем в комментарии к заказу написать информацию, которая поможет курьеру вас найти. Нажмите кнопку «Оформить заказ».
Оплачивайте покупки удобным способом. В интернет-магазине доступно 3 варианта оплаты:
- Наличные при самовывозе или доставке курьером. Специалист свяжется с вами в день доставки, чтобы уточнить время и заранее подготовить сдачу с любой купюры. Вы подписываете товаросопроводительные документы, вносите денежные средства, получаете товар и чек.
- Безналичный расчет при самовывозе или оформлении в интернет-магазине: карты Visa и MasterCard. Чтобы оплатить покупку, система перенаправит вас на сервер системы ASSIST. Здесь нужно ввести номер карты, срок действия и имя держателя.
- Электронные системы при онлайн-заказе: PayPal, WebMoney и Яндекс.Деньги. Для совершения покупки система перенаправит вас на страницу платежного сервиса. Здесь необходимо заполнить форму по инструкции.
Экономьте время на получении заказа. В интернет-магазине доступно 3 варианта доставки:
- Курьерская доставка работает с 9.00 до 19.00. Когда товар поступит на склад, курьерская служба свяжется для уточнения деталей. Специалист предложит выбрать удобное время доставки и уточнит адрес. Осмотрите упаковку на целостность и соответствие указанной комплектации.
- Самовывоз из магазина или склада. Когда заказ поступит на склад, Вам придет уведомление. Мы свяжемся с Вами, уточним время в которое можете приехать.
- Транспортной компанией. Доставим товар в любой город до двери. Заказ можно оплатить при получении.
Самовывоз - 1-2 дня
Доставка курьером - 2-3 дня
Ростов-на-Дону:
Самовывоз - 3-4 дня
Доставка курьером - 4-5 дней
Самовывоз - 4-5 дней
Доставка курьером - 6-7 дней
Воронеж:
Самовывоз - 2 дня
Доставка курьером - 2-3 дня
Самовывоз - 6-7 дней
Доставка курьером -8-9дней
Москва:
Самовывоз - Сегодня
Доставка курьером - 1-2 дня








